Kilkenny, Bracks Farm, Bishop Auckland, County Durham
Available
Example costs for 50% shares.
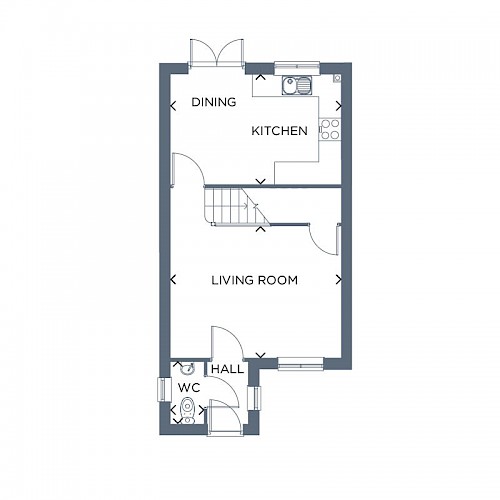
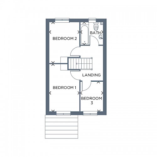
Floor Plan


Site Plan
About The Kilkenny
Council tax band: Council tax band TBD
Key Features
1 bathroom
3 beds
1 Parking space
B
EPC RatingFire Alarm
Open plan kitchen/diner
Separate living area
Downstairs W.C
Rear garden
Allocated parking
- Garage
- Symphony range kitchen units
- Stainless steel single oven, 4 burner hob and integrated cooker hood
- Kitchen upgrades up to £1,200 included
- White sanitaryware
- Front and rear gardens turfed
- Carbon Monoxide Alarms to be provided where gas is fitted into the property
- Council tax band TBD
Explore the local area
Eligibility Criteria
About the developer
About the development
Other homes available at this development
Up to 75% shares available
Bracks Farm - Lisburn
Bishop Auckland, County Durham, DL14 8FL3 Bedroom HouseExample costs 50% shares from
£50
Up to 75% shares available
Bracks Farm - Renmore
Bishop Auckland, County Durham, DL14 8FL3 Bedroom HouseExample costs 50% shares from
£50
Up to 75% shares available
Bracks Farm - Woodford
Bishop Auckland, County Durham, DL14 8FL3 Bedroom HouseExample costs 50% shares from
£50