The Whernside, Greenacres Farm, Goosnargh, Lancashire
Available
Example costs for 50% shares.
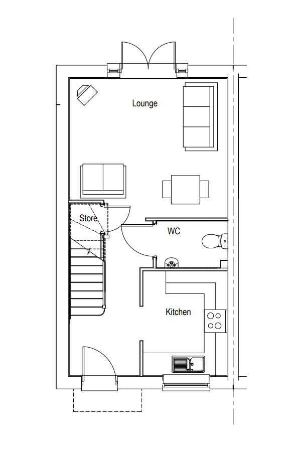
Floor Plan


Site Plan
About The The Whernside
Council tax band: Council tax TBD
Key Features
1 bathroom
2 beds
1 Parking space
Carbon Monoxide Alarm
Fire Alarm
Separate kitchen
Separate living area
Downstairs W.C
Rear garden
Allocated parking
- Stainless steel gas hob, oven chimney hood
- Duravit sanitaryware
- Twin zone thermostatic central heating system
- High speed fibre broadband infrastructure included
- Council tax band TBD
- PEA rating = B
Explore the local area
Eligibility Criteria
About the developer
About the development